Venta de Departamento en Selecciona Uno, San Pedro Garza García, Nuevo León

San Pedro Garza García, Nuevo León

[ssba-buttons]
Departamentos • 400m2 • Recámara(s) • Baño(s)

Selecciona Uno, San Pedro Garza García, Nuevo León


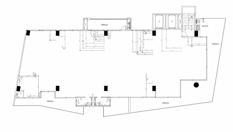
Departamento en venta en obra gris en San Pedro con 400 m de construcción y 130 m de terraza. Bodega y cochera techada para 4 autos. Seguridad 24/7. La torre cuenta con amenidades como alberca, jacuzzi, gimnasio, salón de eventos, sala de negocios, jardín, fogatero, terrazas equipadas y amuebladas, entre otras.
Eloy Cavazos
Eloy Cavazos

Llena los datos para ver el teléfono del vendedor.

Reporta este anuncio